« WORK

Nua

Bangalore

Client

Vinutha Kondur/UKN Properties

Project Type

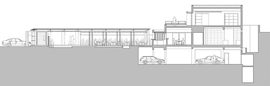
Restaurant

Built Area

10,000 sft

Status

Completed in 2012

 

Project Team

Harish Kumar, Ruchi Patel, Anand K.R., Kanika Thomas, Maya Lakshmanan, Nilekha Kale

 

Structural Consultant

Engineering Consultants India

PHE Consultant

Electro-Mech

Electrical Consultant

Riddhi Consultants

Civil Contractor

Arun Constructions

Photographs

Mallikarjun Katakol

 

Published:

Indian Architect & Builder, 2012

Architect & Interiors India, 2012

Society Interiors, 2012

 

The project began with a simple brief of having a large courtyard and ample seating, much of it in verandahs, under light roofs and canopies -best suited to the mild Bangalore evenings. A chance trip to Venice introduced me first hand to Carlo Scarpa. I saw the garden oft he Querini Stampalia Foundation and it is easily the most beautiful garden I have been in. Small, almost insignificant, the garden is filled with exquisite details articulating junctions, establishing hierarchies, and providing enclosures. On coming back I immediately began imagining our little restaurant as a variegated plinth with a panoply of local materials and subtle level changes all articulated in the Scarpa tradition.

 

Just like in the Venetian garden, smooth materials (Jaisalmer & honed Sandstone) are juxtaposed with rough ones (exposed concrete, flamed Granite and exterior grade terrazzo), shiny elements (copper water spouts, troughs and glass) sit astride dull ones (cement floors, Kota stone and timber). The joints are articulated using grooves or sometimes a third material. The simple white and exposed concrete building sits on this rich surface gently, separated by water channels and light.

 

KEY

1 Gallery

2 Verandah

3 Patio

4 Court

5 Restrooms

6 Deck

7 Bar

8 Seating

9 Kitchen

10 Events

11 Pantry

12 Terrace

M

N