« WORK

Seven Hotel

Bangalore

Client

UKN Properties

Project Type

Business Hotel

Built Area

50,000 sft.

Status

Completed in 2008

 

Project Team

Pramod Jaiswal

 

Structural Consultant

STRUARC

Landscape Consultants

Dhruva Associates

PHE Consultant

Prism Consultants

Electrical Consultant

Entask Consultancy Services

HVAC Consultant

CB Consultants

Civil Contractor

Abraham & Thomas

Interior Contractor

Modi Interiors

Photographs

Clare Arni

 

2011 Aces of Space Award

Architect & Interiors India Magazine

Runner Up

 

2010 IIID- Ave Awards

Institute of Indian Interior Designers

Winner

 

Published:

Indian Architect & Builder, 2012

Society Interiors, 2012

Architecture in Greece, 2010

Better Interiors, 2010

 

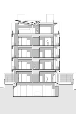
Situated on a narrow semi-urban lot, the plan for this 54 room business hotel had to be slightly modified from the typical hotel model of the central double-loaded corridor with toilets along it and the rooms along the peripheries. The central corridor remained but the rooms and the toilets now shared the external surface.

 

Large balconies ran along the east and west facades and these were encased in sliding teak screens. These enclosed extensions of the rooms work well in Bangalore’s moderate climate. The interiors were done in a palette of local granite, Indian marble and timber.